Продажа: Офис, 250 м²

Парк Мира Москва, проспект Мира 102 с27

Метро

Алексеевская

линии

Удаленность

8 минут пешком

Описание здания

Предлагаются в продажу помещения на Центральной улице элитного бизнес-квартала Парк Мира. Преимущества: • Дизайнерская отделка помещений. • Первая линия основной улицы квартала . • Ирландский клинкер ручной работы, юрский мрамор, натуральный деревянный шпон. • Современные инженерные системы: приточно-вытяжная вентиляция центральная, центральное кондиционирование. • Открытая для посетителей территория бизнес-квартала . • Ликвидный формат: возможность разместить кофейню, магазин, салон, офис, банк, цветочный магазин, маникюрную студию . • Многофункциональный квартал генерит ежедневный трафик до 5000 чел/день.

86 000 000 руб.

344 000 руб. /м²

УСН.

Площадь

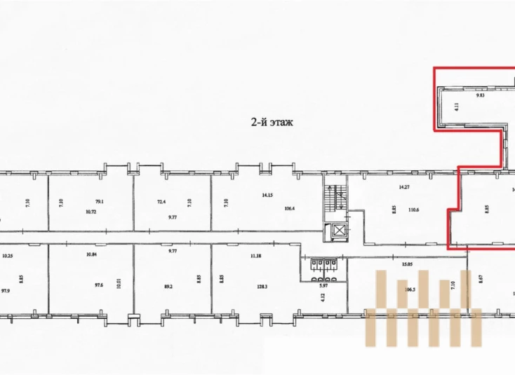
250 м²

Планировка

смешанная

Этаж

2 из 3

Состояние

Стандартная

Имя продавца или название компании

Михаил Фельдшеров

Консультант

Описание предложения

Офисное пространство располагается на 2 этаже в апарт-комплексе Парк Мира. Блок имеет смешанную систему планировки. Помещение с представительской отделкой.

Здание

Похожие предложения