Спартаковская площадь, 1/2,

Москва, площадь Спартаковская 1/2

Метро

Бауманская

линии

Удаленность

10 минут пешком

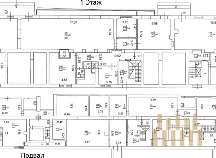
Описание здания

Помещение свободного назначения общей площадью 896,5 кв. м. в жилом доме в Басманном районе Центрального Административного Округа Москвы. Станция метро «Бауманская» в пешей доступности. В непосредственной близости располагается Третье транспортное кольцо. Помещение расположено на первой линии домов. 1 этаж – 456,9 кв. м. подвал – 439,6 кв. м. Отдельный вход с улицы, панорамные витринные окна, смешанная планировка, шесть отдельных входов. Два грузовых подъемника, зона погрузки/разгрузки. Центральные инженерные коммуникации подведены. Отличный рекламный потенциал, хорошая видимость.

Ввод в эксплуатацию

1960

Этажность

9

Вентиляция

естественная

Кондиционирование

no

Паркинг

наземный

Вакантные площади

от 0 м²

Имя продавца или название компании

Антон Тимощенко

Консультант