Сибирь

Москва, улица Красная Пресня 24

Метро

Краснопресненская, Баррикадная

линии

Удаленность

7 минут пешком

Описание здания

Бизнес-центр "Сибирь" расположен в пешей доступности от метро Краснопресненская/Баррикадная. Благодаря удобной локации рядом с ТТК и Садовым кольцом транспортом можно добраться до любой точки Москвы. Объект входит в классификацию В+ уровня, где определяется по наличию современными инженерных систем, профессиональной управляющей компанией и наличию паковочной зоной рядом со зданием.

Класс

B

Ввод в эксплуатацию

2006

Этажность

12

Вентиляция

приточно-вытяжная

Кондиционирование

центральное

Паркинг

наземный

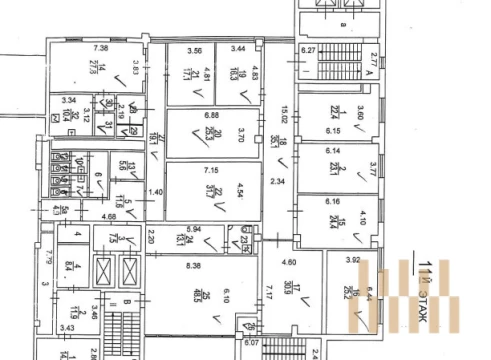
Вакантные площади

от 180 до 1303 м²

Имя продавца или название компании

Елена Фатеева

Консультант

Похожие здания